Oficina en venta en Valle del Campestre en San Pedro Garza García DV-1GKS9
$2,689,995 USD
Valle Del Campestre, ., San Pedro Garza García, Nuevo León
Conoce nuestros Insights
Obtén información detallada sobre el entorno de las propiedades dentro de tu rango de búsqueda.
Información general
TipoOficinas
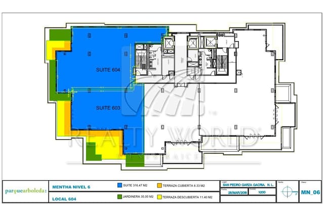
Construcción316.47m2
Cajones de estacionamientos23
Acerca de esta propiedad
Oficina en venta en Valle del Campestre en San Pedro Garza GarcíaDV-1GKS9
Oficina en venta en valle del campestre de 316.47 m2 de construcción más área de terraza de 19.74 m2, con 5 cajones de estacionamientos vip y 18 cajones en pool, la oficina se encuentra en el nivel 6 (ph),...
Amenidades (3)
Estacionamiento techado
Jardín
Seguridad 24 horas
Fecha de publicación:
12/06/2025
Fecha de actualización:
03/12/2025
ID: DV-1GKS9
Ubicación en mapa
Valle Del Campestre, San Pedro Garza García, Nuevo León
Propiedades similares
Propiedades cercanas con datos de propiedad similares.
Servicios adicionales
Conecta con el profesional adecuado para tu hogar o cualquier desarrollo inmobiliario, en un solo clic.





