Oficinas en Renta en San Jerónimo DV-PEXEY
$431,098 MXN
San Jerónimo, San Jerónimo, Monterrey, Nuevo León
Terreno 898.00m²
Conoce nuestros Insights
Obtén información detallada sobre el entorno de las propiedades dentro de tu rango de búsqueda.
Información general
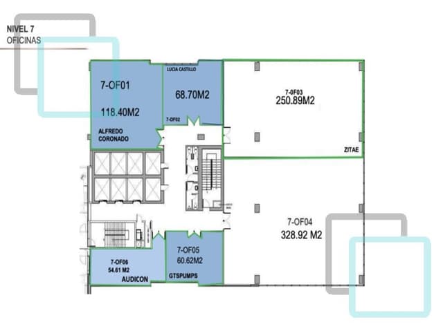
TipoOficinas
Construcción898m2
Terreno898m2
Año de construcción2024
Acerca de esta propiedad
Oficinas en Renta en San JerónimoDV-PEXEY
Oficina acondicionada en renta de 898 m2 en corporativo san jerónimo, 27-or-5596, muy bien ubicada.
Fecha de publicación:
09/07/2025
Fecha de actualización:
27/11/2025
ID: DV-PEXEY
Ubicación en mapa
San Jerónimo, Monterrey, Nuevo León
Propiedades similares
Propiedades cercanas con datos de propiedad similares.
Servicios adicionales
Conecta con el profesional adecuado para tu hogar o cualquier desarrollo inmobiliario, en un solo clic.



