NAVE INDUSTRIAL EN RENTA EN FRACCIONAMIENTO SAN JAVIER EN APODACA NUEVO LEON DV-HKI7L
$1,027,871 MXN
San Javier, Fraccionamiento San Javier, Apodaca, Nuevo León
Conoce nuestros Insights
Obtén información detallada sobre el entorno de las propiedades dentro de tu rango de búsqueda.
Información general
Acerca de esta propiedad
NAVE INDUSTRIAL EN RENTA EN FRACCIONAMIENTO SAN JAVIER EN APODACA NUEVO LEONDV-HKI7L
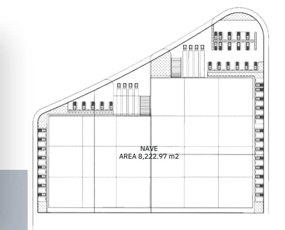
Apodaca nuevo león. nave industrial en renta valor de la renta $125.00 por m2 cuota de mantenimiento de 1.30 mxn por m2. mas los impuestos correspondientes. nave industrial nueva en fraccionamiento se javier en apodaca nuevo león. superficie de 12,433.57 m2 nave: 8,222.97 ...
Fecha de publicación:
30/04/2025
Fecha de actualización:
10/04/2026
ID: DV-HKI7L
Información de la agencia y agente inmobiliario
Ubicación en mapa
San Javier, Apodaca, Nuevo León
¿Tienes algún problema con esta publicación?
Propiedades similares
Propiedades cercanas con datos de propiedad similares.
Servicios adicionales
Conecta con el profesional adecuado para tu hogar o cualquier desarrollo inmobiliario, en un solo clic.



