Nave industrial en Renta en Colonial del Sur, Juárez, Chihuahua DV-A290B
$92,529 USD
Colonial Del Sur, Blvd Independencia, Juárez, Chihuahua
Terreno 26847.00m²
Conoce nuestros Insights
Obtén información detallada sobre el entorno de las propiedades dentro de tu rango de búsqueda.
Información general
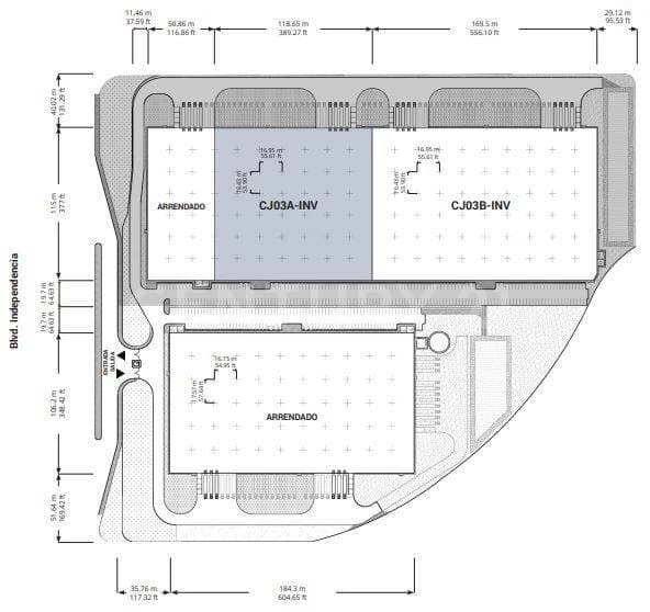
TipoNaves industriales
Construcción13645m2
Terreno26847m2
Año de construcción1-ene-2023
Cajones de estacionamientos90
Acerca de esta propiedad
Nave industrial en Renta en Colonial del Sur, Juárez, ChihuahuaDV-A290B
Caracteristicas: - nave industrial en proceso de construcción - entrega benéfica en agosto 2023 - entrega sustancial un mes después de entrega benéfica - superficie de terreno: 26,847 m2 - superficie de construcción: 13,645 m2 - forma de terreno: regular...
Fecha de publicación:
13/11/2023
Fecha de actualización:
08/11/2025
ID: DV-A290B
Ubicación en mapa
Colonial Del Sur, Juárez, Chihuahua
Propiedades similares
Propiedades cercanas con datos de propiedad similares.
Servicios adicionales
Conecta con el profesional adecuado para tu hogar o cualquier desarrollo inmobiliario, en un solo clic.

