BODEGA EN VENTA CUERNAVACA, CESIÓN DE DERECHOS SU PRECIO A TRATAR, BUENA UBICACIÓN DV-JEM51
$10,000,000 MXN
Ahuatepec, Camino Antiguo, Cuernavaca, Morelos
Conoce nuestros Insights
Obtén información detallada sobre el entorno de las propiedades dentro de tu rango de búsqueda.
Información general
Acerca de esta propiedad
BODEGA EN VENTA CUERNAVACA, CESIÓN DE DERECHOS SU PRECIO A TRATAR, BUENA UBICACIÓNDV-JEM51
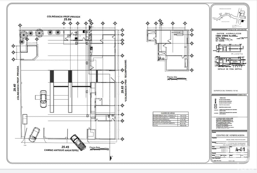
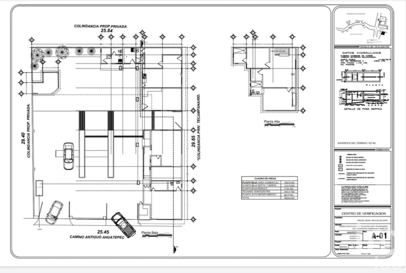
Ref: nex-149491 propiedad ubicada en calle camino antiguo ahuatepec, poblado de ocotepec en cuernavaca morelos. *superficie total del terreno (755)m2 *superficie total de construcción aproximada (858)m2. *departamento 1 planta baja consta de sala, comedor, 2 recámaras, 2 baños, patio de servicio, cuarto de...
Fecha de publicación:
10/05/2026
Fecha de actualización:
10/05/2026
ID: DV-JEM51
Información de la agencia inmobiliaria
IAD México
Ubicación en mapa
Ahuatepec, Cuernavaca, Morelos
¿Tienes algún problema con esta publicación?
Propiedades similares
Propiedades cercanas con datos de propiedad similares.
Servicios adicionales
Conecta con el profesional adecuado para tu hogar o cualquier desarrollo inmobiliario, en un solo clic.

