Bodegas en Renta en Parque Industrial Reynosa (Sección Norte) DV-6CEZB
$103,040 MXN
Parque Industrial Reynosa (Sección Norte), parque industrial reynosa, Reynosa, Tamaulipas
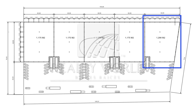
Terreno 1288.00m²
Conoce nuestros Insights
Obtén información detallada sobre el entorno de las propiedades dentro de tu rango de búsqueda.
Información general
TipoBodegas
Construcción1288m2
Terreno1288m2
Año de construcción2010
Acerca de esta propiedad
Bodegas en Renta en Parque Industrial Reynosa (Sección Norte)DV-6CEZB
Bodega en renta parque industrial reynosa
Fecha de publicación:
04/06/2024
Fecha de actualización:
10/04/2026
ID: DV-6CEZB
Información de la agencia inmobiliaria
Realty Experts Viva
Ubicación en mapa
Parque Industrial Reynosa (Sección Norte), Reynosa, Tamaulipas
¿Tienes algún problema con esta publicación?
Propiedades similares
Propiedades cercanas con datos de propiedad similares.
Servicios adicionales
Conecta con el profesional adecuado para tu hogar o cualquier desarrollo inmobiliario, en un solo clic.
