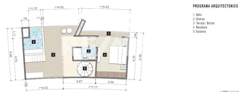
DEPA PH 2105 2 REC + 2 BAÑOS + ROOF DV-5D766
$6,704,117 MXN
Supermanzana 9, AURORA TOWERS, Cancún, Quintana Roo
Habitaciones 2Baños 2.0Terreno 60.00m²
Conoce nuestros Insights
Obtén información detallada sobre el entorno de las propiedades dentro de tu rango de búsqueda.
Información general
TipoDepartamentos
Construcción131.25m2
Terreno60m2
Año de construcción25-sept-2024
Baños2
Cajones de estacionamientos1
Habitaciones2
Número de piso2
Piso en el que se encuentra20
Acerca de esta propiedad
DEPA PH 2105 2 REC + 2 BAÑOS + ROOFDV-5D766
Espectacular preventa de torre luna con entrega diciembre 2027, disponibles 188 departamento y 7 pent-houses, la primera de 4 majestuosas torres de 21 niveles que conformaran este espectacular proyecto en cancún con ubicación inmejorable con acceso al boulevard luis donaldo...
Amenidades (1)
Seguridad 24 horas
Fecha de publicación:
13/03/2024
Fecha de actualización:
25/09/2024
ID: DV-5D766
Ubicación en mapa
Supermanzana 9, Cancún, Quintana Roo
Propiedades similares
Propiedades cercanas con datos de propiedad similares.
Servicios adicionales
Conecta con el profesional adecuado para tu hogar o cualquier desarrollo inmobiliario, en un solo clic.




