DEPARTAMENTO EN VENTA DV-06638
$225,000 USD
Zona Centro, Av. Revolución 1792, Tijuana, Baja California
Habitaciones 1Baños 1.0
Conoce nuestros Insights
Obtén información detallada sobre el entorno de las propiedades dentro de tu rango de búsqueda.
Información general
TipoDepartamentos
Construcción54m2
Año de construcción25-sept-2024
Baños1
Cajones de estacionamientos1
Habitaciones1
Número de piso1
Piso en el que se encuentra5
Acerca de esta propiedad
DEPARTAMENTO EN VENTADV-06638
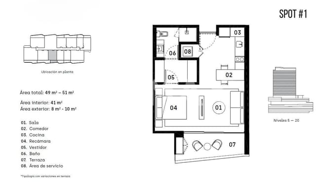
Departamento tipo loft ubicado en el corazón urbano en av. revolución, un nodo de alta afluencia turística con variedad de centros de entretenimiento y restaurantes. modelo spot disponible desde en nivel 5 al 20, dispone de un área total: 54 m²,...
Fecha de publicación:
10/09/2024
Fecha de actualización:
25/09/2024
ID: DV-06638
Información de la agencia inmobiliaria
RE/MAX HG Elite
Ubicación en mapa
Zona Centro, Tijuana, Baja California
¿Tienes algún problema con esta publicación?
Propiedades similares
Propiedades cercanas con datos de propiedad similares.
Servicios adicionales
Conecta con el profesional adecuado para tu hogar o cualquier desarrollo inmobiliario, en un solo clic.




