DEPARTAMENTOS EN VENTA EN OTAY, TIJUANA BAJA CALIFORNIA. DV-34C76
$179,000 USD
Residencial Otay Vista, Vista Linda, Tijuana, Baja California
Habitaciones 1Baños 1.0Terreno 53.00m²
Conoce nuestros Insights
Obtén información detallada sobre el entorno de las propiedades dentro de tu rango de búsqueda.
Información general
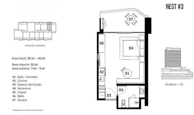
TipoDepartamentos
Construcción53m2
Terreno53m2
Año de construcción1-ene-2024
Baños1
Cajones de estacionamientos1
Habitaciones1
Acerca de esta propiedad
DEPARTAMENTOS EN VENTA EN OTAY, TIJUANA BAJA CALIFORNIA.DV-34C76
Bosques de otay – tu nuevo hogar en tijuana un desarrollo de departamentos que lo tiene todo: ubicación, comodidad y amenidades pensadas para tu estilo de vida. modelos disponibles: estudio - precios desde $179,000 dólares, - área 53 m², -...
Amenidades (2)
Balcón
Seguridad 24 horas
Fecha de publicación:
07/02/2024
Fecha de actualización:
10/10/2025
ID: DV-34C76
Ubicación en mapa
Residencial Otay Vista, Tijuana, Baja California
Propiedades similares
Propiedades cercanas con datos de propiedad similares.
Servicios adicionales
Conecta con el profesional adecuado para tu hogar o cualquier desarrollo inmobiliario, en un solo clic.




