CASA EN VENTA EN CARRETERA NACIONAL DV-FSBVO
$14,900,000 MXN
El Uro, Pedregal de la montaña, Monterrey, Nuevo León
Conoce nuestros Insights
Obtén información detallada sobre el entorno de las propiedades dentro de tu rango de búsqueda.
Información general
Acerca de esta propiedad
CASA EN VENTA EN CARRETERA NACIONALDV-FSBVO
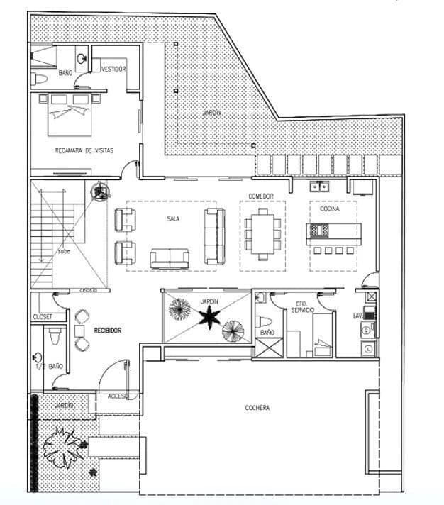
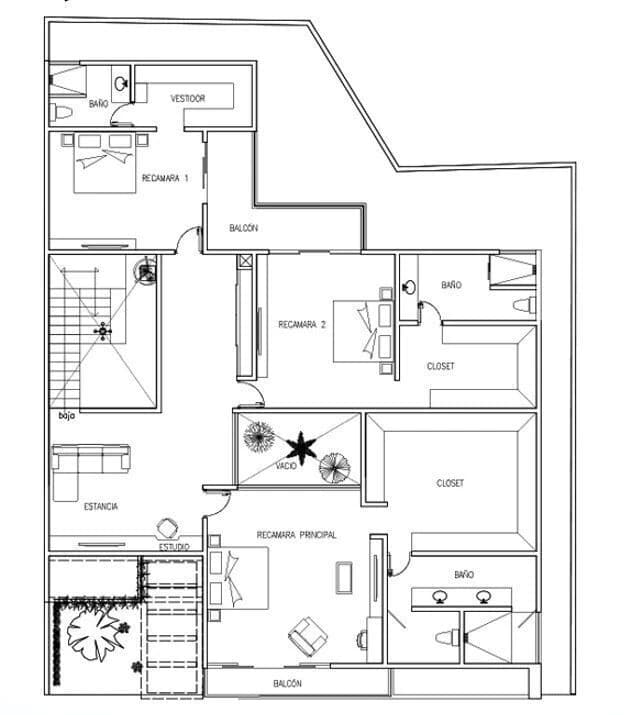
Casa en venta para estrenar con amplios espacios y grandes ventanales que permiten la iluminación natural. planta baja: cochera para 4 autos recibidor sala comedor cocina lavandería recámara de visitas con baño completo y vestidor cuarto de servicio con baño 1/2 baño de visitas jardín planta alta: recámara principal con baño y vestidor 2...
Amenidades (5)
Fecha de publicación:
25/01/2025
Fecha de actualización:
09/05/2026
ID: DV-FSBVO
Información de la agencia inmobiliaria
Walls & People
Ubicación en mapa
El Uro, Monterrey, Nuevo León
¿Tienes algún problema con esta publicación?
Propiedades similares
Propiedades cercanas con datos de propiedad similares.
Servicios adicionales
Conecta con el profesional adecuado para tu hogar o cualquier desarrollo inmobiliario, en un solo clic.





