Venta de Terreno Uso de Suelo Mixto en El Progreso , Corregidora Querètaro DV-63B39
$24,000,000 MXN
El Progreso (Las Trojas), La Troje, Corregidora, Querétaro
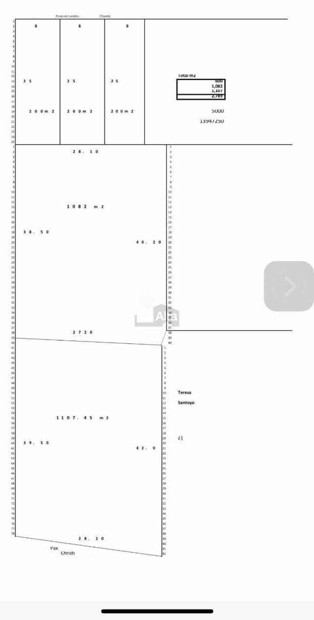
Terreno 20000.00m²
Conoce nuestros Insights
Obtén información detallada sobre el entorno de las propiedades dentro de tu rango de búsqueda.
Información general
TipoTerrenos
Terreno20000m2
Año de construcción4-nov-2025
Acerca de esta propiedad
Venta de Terreno Uso de Suelo Mixto en El Progreso , Corregidora QuerètaroDV-63B39
Terreno en venta en el progreso (las trojas), corregidora, querétaro – 20,000 m⊃2; gran oportunidad de inversión en una zona con alta plusvalía al sur de la ciudad. este terreno de 20,000 m⊃2; se encuentra en san francisquito, una localidad en...
Fecha de publicación:
04/11/2025
Fecha de actualización:
04/11/2025
ID: DV-63B39
Ubicación en mapa
El Progreso (Las Trojas), Corregidora, Querétaro
Propiedades similares
Propiedades cercanas con datos de propiedad similares.
Servicios adicionales
Conecta con el profesional adecuado para tu hogar o cualquier desarrollo inmobiliario, en un solo clic.




