LOCAL EN VENTA CENTRO DE MONTERREY DV-5I2XO
$4,522,695 MXN
Centro, WASHINGTON, Monterrey, Nuevo León
Conoce nuestros Insights
Obtén información detallada sobre el entorno de las propiedades dentro de tu rango de búsqueda.
Información general
Acerca de esta propiedad
LOCAL EN VENTA CENTRO DE MONTERREYDV-5I2XO
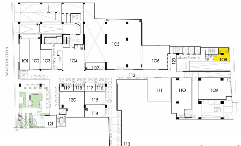
Locales comerciales ya rentados en venta excelente oportunidad para inversionistas a unas cuadras de la macroplaza en el centro de monterrey. local: 108 piso: pb área: 114.21m² interior: 114.21m² terraza: n/a vocación: servicios: lavandería rentado: 36 meses de contrato: venta: $4,522,695.00 características: ...
Amenidades (2)
Fecha de publicación:
25/01/2025
Fecha de actualización:
20/11/2025
ID: DV-5I2XO
Ubicación en mapa
Centro, Monterrey, Nuevo León
Propiedades similares
Propiedades cercanas con datos de propiedad similares.
Servicios adicionales
Conecta con el profesional adecuado para tu hogar o cualquier desarrollo inmobiliario, en un solo clic.





